
Inženjerska rješenja i tehničko savjetovanje u području građevine i strojarstva
ENGENIUM j.d.o.o. bavi se tehničkim savjetovanjem i razvojem inženjerskih rješenja u području građevinarstva i strojarstva. Naš cilj je optimizacija projekata, sigurnost i dugoročna održivost.
Stručna analiza, optimizacija troškova i tehnička podrška kroz sve faze projekta. Izrada troškovnika i kalkulacija izrade proizvoda.
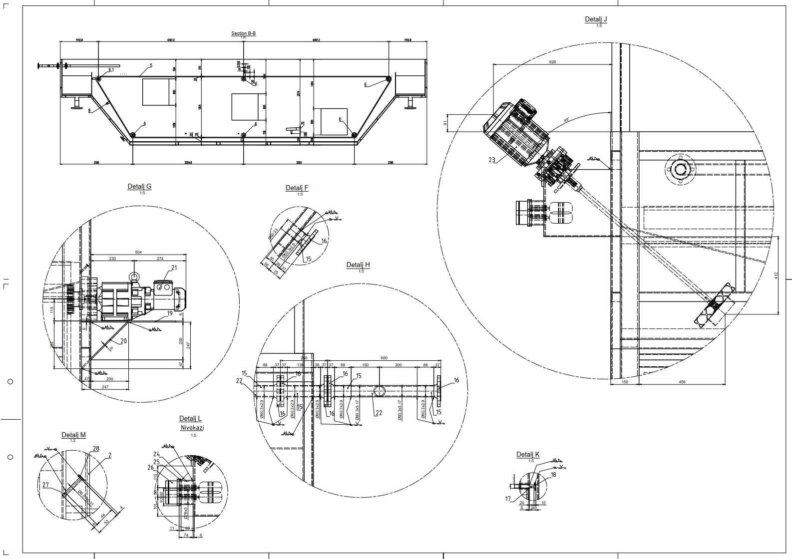
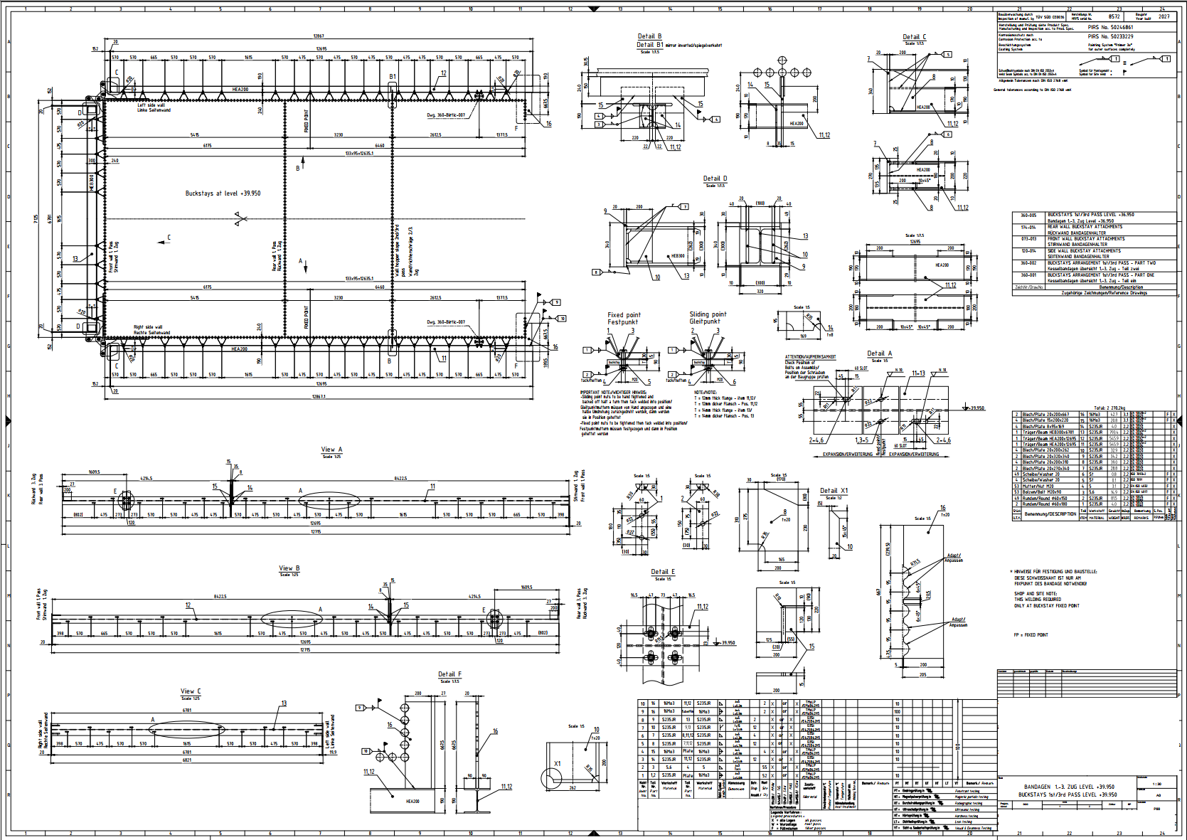
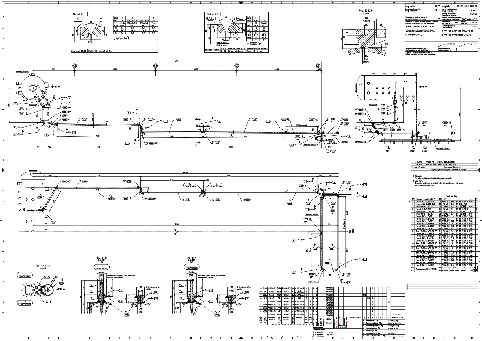
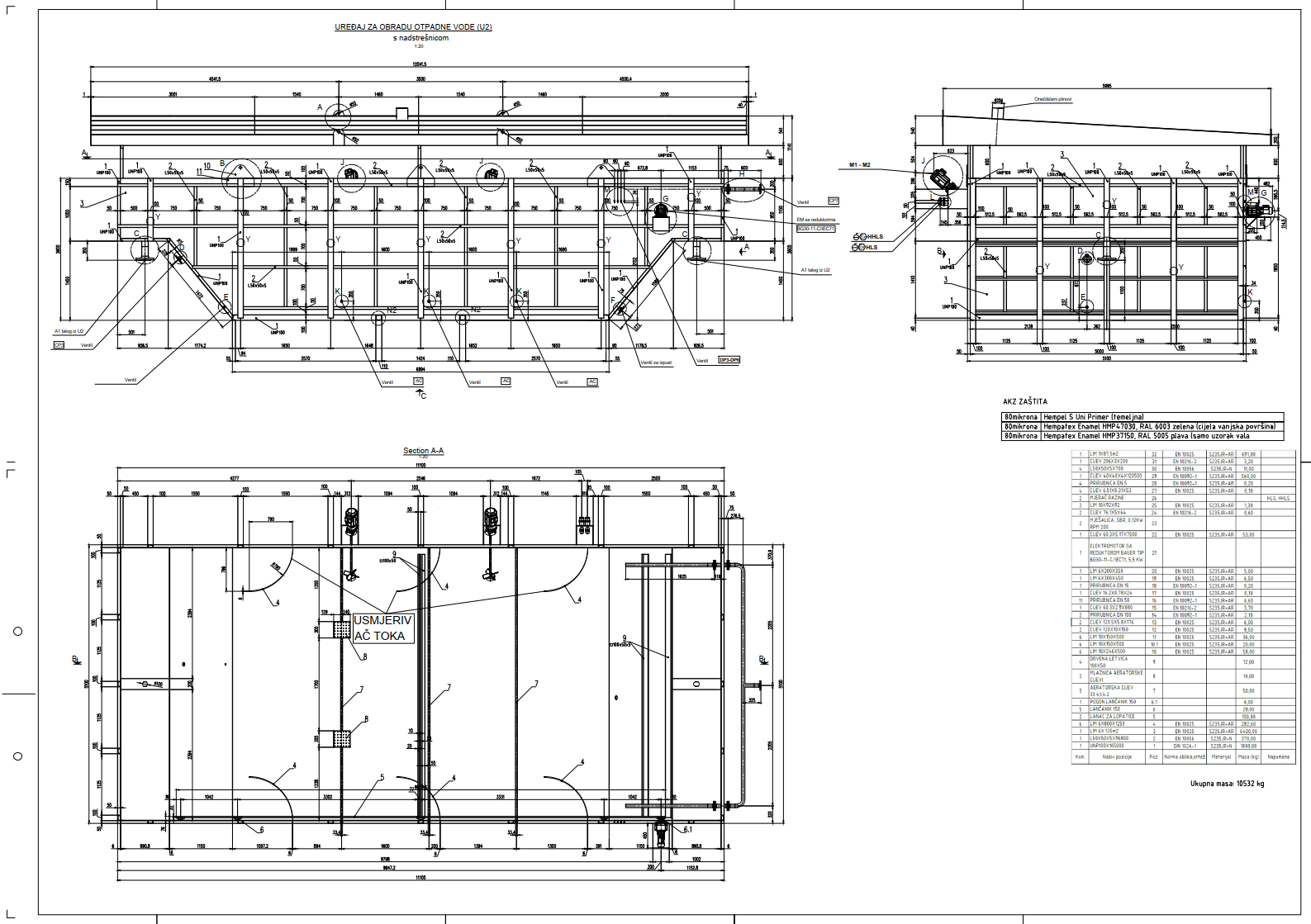
Izrada idejnih riješenja, dizajn, modeliranje, proračun i izrada radioničke i montažne dokumentacije. Razvoj tehničkih rješenja, sustava instalacija i industrijskih postrojenja. Izrada AS build dokumentacije.
Komunikacija s investitorima, klijentima i upravom. Definiranje proračuna i vremena. Upravljanje resursima. Komunikacija izmeu tima, voditelja projekta i vanjskih suradnika.
Tumačenje osnova normi, razumjevanje tehničkih nacrta, pravilno korištenje mjernih i pomćnih alata. Primjena stečenog znanja u praksi.
Izrada rendera modela i printanje 3D modela.
ENGENIUM j.d.o.o.
Ulica Kraljice Jelene 22, Slavonski Brod
OIB: 45449899577
www.engenium.hr
info@engenium.hr
+385 92 143 1428
Vlasnik: Marko Birtić
marko.birtic@engenium.hr